Головна
Каталог
Котеджі
Продаж півособняка-дуплекса в с. Угорники
Продаж півособняка-дуплекса в с. Угорники
1 / 9
$219 390
$1 219/м²
ID
636925
Тип котеджу
Дуплекс
Кімнат
4
Поверховість
1
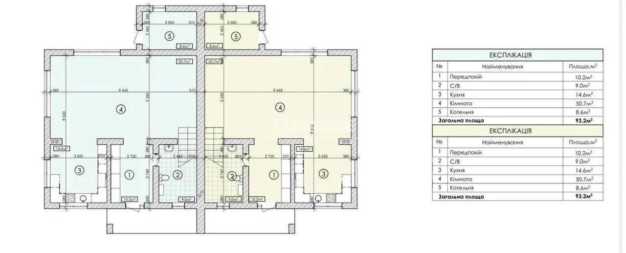
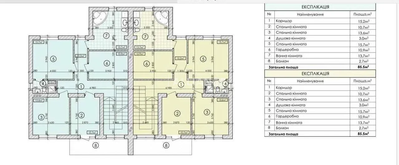
Площа
180.00м²
Ділянка
4.00сот
Стан
Зданий сирець
Район
Угорники
Населений пункт
м. Івано-Франківськ
ОПИС
Продається дуплекс у с. Угорники (біля ЖК "Паркова Алея") Пропонуємо на продаж стильний дуплекс на два поверхи, загальною площею 180 м² — ідеальний вибір для комфортного життя всієї родини! Локація: один із найкращих та найзручніших районів міста — тиха, зелена вулиця з швидким доступом до центру, шкіл, садочків, ТРЦ та транспорту. Переваги: • 2 поверхи сучасного, продуманого до дрібниць планування • Площа — 180 м²: максимум простору для життя та відпочинку • Усі комунікації — міські (вода, каналізація, газ, електрика) • Велика кухня-вітальня, кілька спалень, санвузли на кожному поверсі • На другому поверсі — два санвузли, один із яких знаходиться безпосередньо в спальні • Два зручних паркомісця під навісом — для вашого комфорту за будь-якої погоди • Власне подвірʼя — місце для BBQ, ігор дітей чи відпочинку з друзями • Сучасний фасад і якісне будівництво (утеплення даху та стін - пінопласт екструдований, панельне перекриття поверхів) Ідеальний варіант для тих, хто шукає міський комфорт у поєднанні з затишком заміського життя! У дуплексі використано лише якісні матеріали, а простір створений для вашого затишку та натхнення. Телефонуйте вже зараз, щоб домовитись про перегляд!
ЗВʼЯЗОК З МЕНЕДЖЕРОМ
Менеджер Альянс
+380 (66) 697 74 07