Головна
Каталог
Котеджі
Продаж сучасного будинку 200м2 в Крихівцях з ділянкою 8.5сот
Продаж сучасного будинку 200м2 в Крихівцях з ділянкою 8.5сот
1 / 17
$230 000
$1 168/м²
ID
573615
Тип котеджу
Будинок
Кімнат
4
Поверховість
1
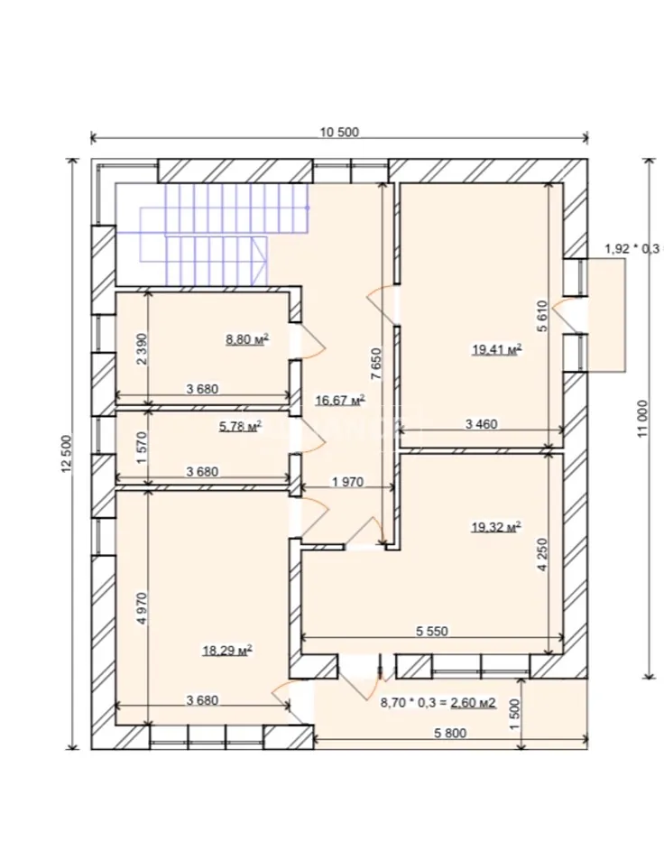
Площа
197.00м²
Ділянка
8.50сот
Стан
Зданий сирець
Район
Крихівці
Населений пункт
с. Крихівці
ОПИС
Продаж сучасного будинку у Крихівцях площею 200м2 Що розташований на земельній ділянці 8.5сот. Сучасний проект, ландшафтний дизайн, багато підсвіток. Розташований поруч Калинової Слободи, неподалік річки, також в пішій доступності міське озеро та парк. -затишне та зручне розташування в приватному секторі, на тихій вулиці -закрита територія -сучасний дизайн фасаду -панорамні вікна – всі міські комунікації (газ, світло 10 кВт (три фази), централізоване водопостачання та міська каналізація). У вартість входить: - Електророзводка - Гіпсова штукатурка -Броньовані вхідні двері -Металопластикові пʼятикамерні вікна -Дах металочерепиця – Перекриття між першим та другим поверхом -Деревяне перекриття між 2 поверхом і дахом -Оздоблення фасаду утеплення фасаду пінопластом -Благоустрій прибудинкової території (закладення бруківки) – Відкатні ворота -Паркан між сусідами -Озеленення території Продаж без додаткових комісій! Детальніше та огляд за телефоном.
ЗВʼЯЗОК З МЕНЕДЖЕРОМ
Євген Борсук
+380 (95) 219 49 78