Головна
Каталог
Комерція
Оренда комерційного приміщення
Оренда комерційного приміщення
1 / 15
₴61 200/міс
₴200/м²
ID
944986
Призначення
Офісне, Кафе, Готель, Вільне
Поверх
2
Поверховість
2
Потужність
кВт
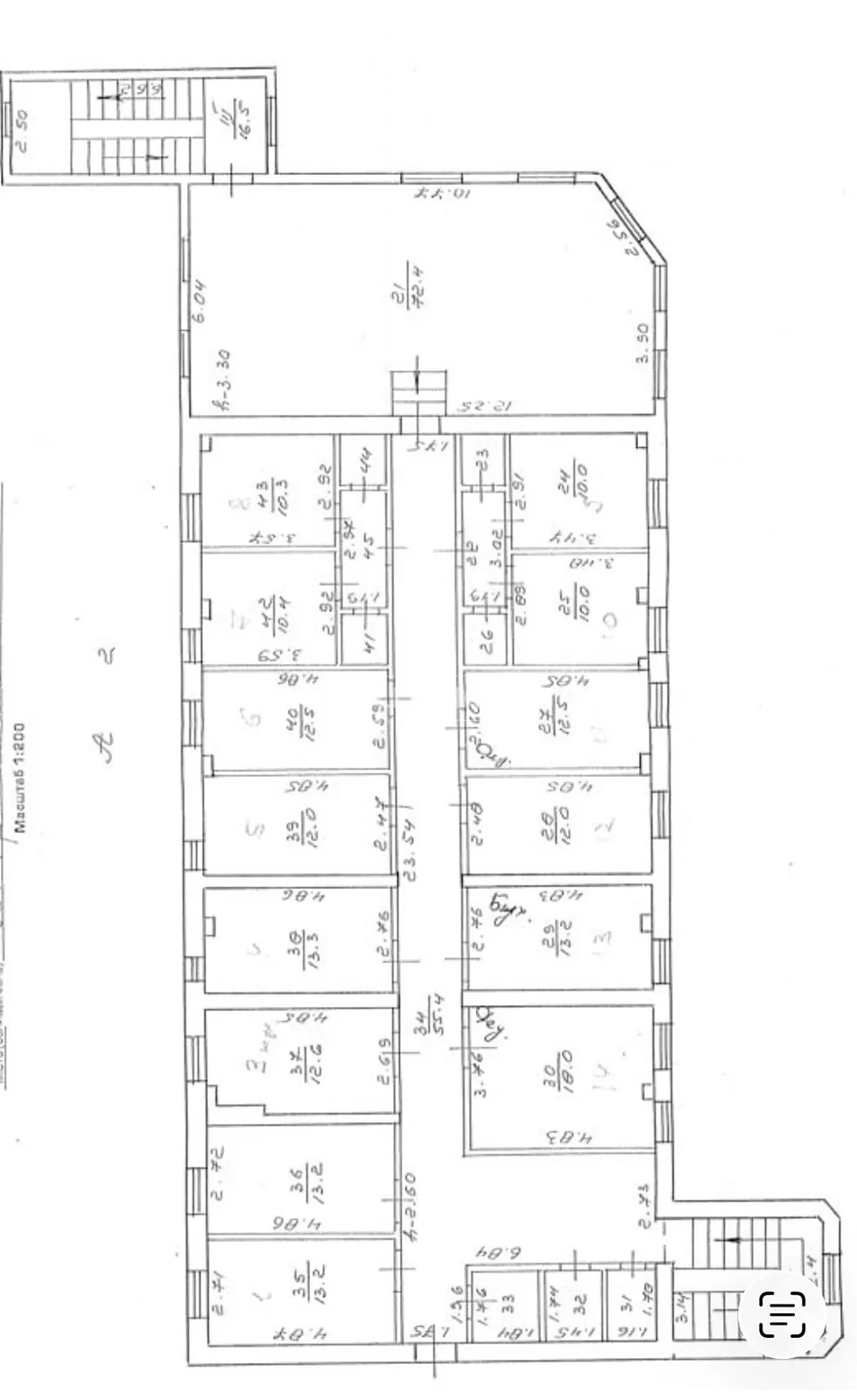
Площа
306.00м²
Стан
Ремонт
Район
Позитрон
Населений пункт
м. Івано-Франківськ
Опалення
Електрика, Твердопаливний котел
ОПИС
Оренда комерційного приміщення 306 м² Пропонується в оренду окремий поверх площею 306 м² в капітальній будівлі. Зручне планування – кабінетна система Світлі просторі кімнати з вікнами Коридорний тип доступу Окремий вхід через сходову клітку Санвузли на поверсі Підходить під офіс, медичний центр, навчальний заклад, ІТ-компанію, кол-центр, представництво, склад-офіс тощо Будівля в хорошому технічному стані. Є всі необхідні комунікації: електрика, вода, опалення. Зручний доїзд, можливість паркування поруч. Також можлива оренда окремих кабінетів 200 грн/м2 Готові до довгострокової оренди. Деталі та умови – за телефоном.
ЗВʼЯЗОК З МЕНЕДЖЕРОМ
Андрій Боян
+380 (98) 039 50 11