Головна
Каталог
Комерція
Комерційні приміщення в торговому центрі на перехресті Симоненка-Микол
Комерційні приміщення в торговому центрі на перехресті Симоненка-Микол
ОБʼЄКТ НЕ АКТУАЛЬНИЙ
1 / 12
$183 750
$2 100/м²
ID
788834
Призначення
Вільне
Поверх
1
Поверховість
4
Потужність
10кВт
Площа
87.5м²
Стан
Сирець
Район
Каскад
Населений пункт
м. Івано-Франківськ
Забудовник
IN WEST CITY
Опалення
Електрика
ОПИС
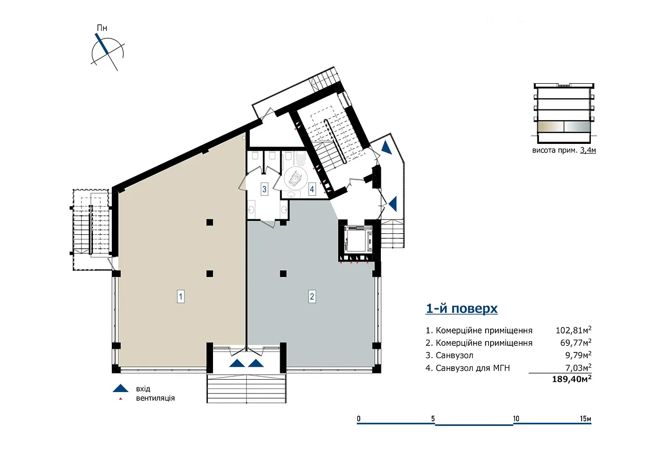
Продається цікаве приміщення в новому торгово-офісному центрі на перехресті Симоненка-Миколайчука. Центр з сучасним плануванням на 5 поверхів під найрізноманітніші потреби як для оренди так і для зручного ведення власного бізнесу. Приміщення розташоване безпосередньо на вїзді в новий великий житловий комплекс Каскад-Ярко. цоколь –бронь 1й — 2100$ за м2 2й — продано 3й — 1200$ за м2 4й — 1200$за м2 5й — продано
ЗВʼЯЗОК З МЕНЕДЖЕРОМ
Андрій Ніколаєв
+380 (68) 197 70 66