Головна
Каталог
Квартири
Продаж 1-кімнатної квартири біля Стрийської
Продаж 1-кімнатної квартири біля Стрийської
1 / 4
$65 630
$1 519/м²
ID
968417
Тип квартири
Новобудова
К-сть кімнат
1
Площа
43.20м²
Поверх
5/5
Стан
Сирець
Вулиця
Героїв Крут
Населений пункт
с. Сокільники
ОПИС
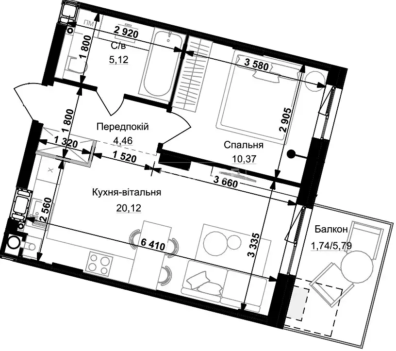
1-кімнатна квартира, бічна вул. Стрийської (вул. Героїв Крут, Сокільники) Продається 1-кімнатна квартира площею 43,2 м² у новому житловому комплексі на бічній вулиці Стрийської, у Сокільниках (вул. Героїв Крут). Будинок №2 — 1 квартал 2028 року. 📍 Основна інформація: Площа: 43,2 м² Кімнат: 1 Поверх: 5 із 5 Будинок: №2 Стан: у проєкті, без ремонту Здача: 1 квартал 2028 року Планування: кухня-вітальня, спальня, санвузол, балкон Розташування: Тиха бічна вул. Стрийської Поруч магазини, кавʼярні, аптеки, транспорт 5 хв до ТРЦ Victoria Gardens Зручний виїзд до центру міста Деталі та консультація: Звертайтесь — розповімо про умови купівлі та допоможемо підібрати вигідне рішення.
ЗВʼЯЗОК З МЕНЕДЖЕРОМ
no pic
Наталя Рудюк
+380 (99) 731 79 98