Головна
Каталог
Квартири
Продаж 1к Квартира 42.17 кв.м вулиця Стрийська,
Продаж 1к Квартира 42.17 кв.м вулиця Стрийська,
1 / 4
$53 183
$1 261/м²
ID
862142
Тип квартири
Новобудова
К-сть кімнат
1
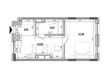
Площа
42.17м²
Площа кухні
14.99м²
Поверх
2/7
Стан
Сирець
Район
Франківський
Вулиця
Стрийська
Населений пункт
м. Львів
ОПИС
Продається 1-кімнатна квартира вул. Стрийська, Львів площею 42,17 м² у сучасному житловому комплексі Квартира розташована на 2-му поверсі з 7, має зручне планування — простора, світла й комфортна. Основна інформація: Площа: 42,17 м² Житлова: 17,48 м² Кухня: 14,99 м² Поверх: 2 із 7 Про комплекс: це про комфорт і стиль життя. На території комплексу є дитячий садок, магазини, кавʼярні, спортзал, coworking, зони відпочинку, навіть кіно просто неба. Територія закрита від авто, з підземним паркінгом та Smart Home системою Ajax у кожній квартирі. Локація: Зручне розташування — бічна Стрийської, поруч УКУ, парк, кавʼярні, транспорт. До центру міста — 10–15 хвилин. 📞 За детальнішою інформацією звертайтесь за телефоном.
ЗВʼЯЗОК З МЕНЕДЖЕРОМ
no pic
Михайло Комарницький
+380 (93) 026 09 41