Продається квартира 2кім квартира, 69м2, в ЖК Долішній від надійного забудовника ВамБуд.
Ціна 885м2 !!!
Поруч вся необхідна інфраструктура для комфортного життя (озеро, парк, річка, супермаркети)
Переваги квартири:
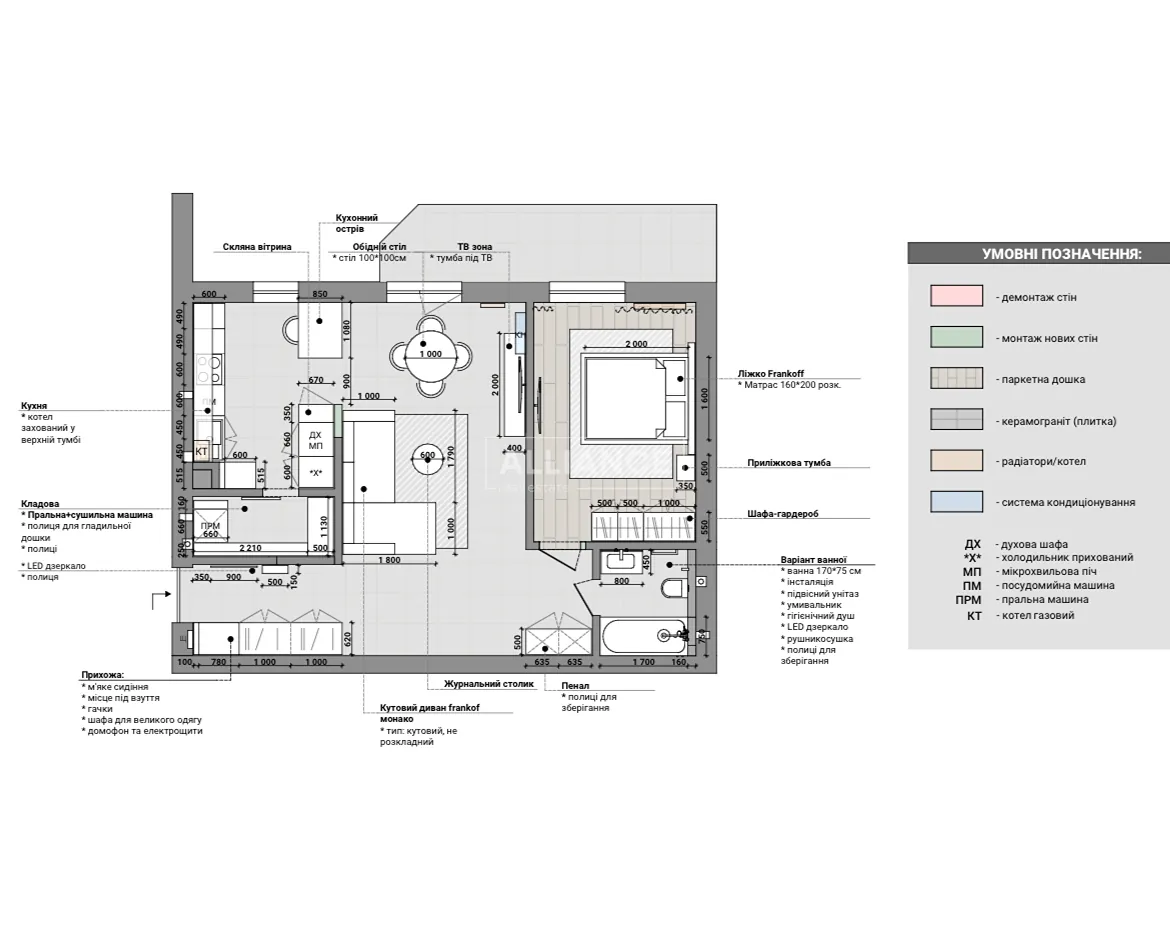
- Кухня-студія з виходом на власну ділянку (патіо 8м2);
- Тепла підлога всюди крім спальні, газове опалення;
- Зроблено опалення та сантехніку. Встановлено газовий котел Ariston
- залито чистову стяжку.
- Вікна з 6-камерним енергозберігаючим профілем, вигляд у внутрішній двір;
- Штукатурка стін під маяк;
- Розводка під інтернет і ТБ;
- Броньовані вхідні двері;
- Встановлено всі лічильники, змонтовано систему водопостачання та каналізації.
Закрита територія з ландшафтами дитячими та спортивними майданчиками.
Продаж по переуступці без додаткових комісій
Телефонуйте для огляду!