Головна
Каталог
Квартири
Продається 1-кімнатна квартира в центральній частині міста.
Продається 1-кімнатна квартира в центральній частині міста.
1 / 8
$29 300
$749/м²
ID
776274
Тип квартири
Новобудова
К-сть кімнат
1
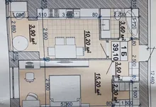
Площа
39.10м²
Площа кухні
14.10м²
Поверх
14/14
Стан
Сирець
Район
Княгинин
Вулиця
Княгинин
Населений пункт
м. Івано-Франківськ
Забудовник
Спілка забудівників
ЖК
Княгинин
ОПИС
Продається 1-кімнатна квартира в центральній частині міста. Будинок цегляний, квартира внутрішня, розташована на 14-му поверсі 14-ти поверхового будинку. Житловий комплекс з відеонаглядом, дитячими ігровими та спортивними майданчиками і великим дворівневим підземним паркінгом. Поруч Торговий центр, супермаркет, різні магазини, школа, садочок, гарне транспортне сполучення з усіма районами міста.
МІТКА НА КАРТІ
ЗВʼЯЗОК З МЕНЕДЖЕРОМ
no pic
Володимир Заліський
+380 (96) 035 82 70