Головна
Каталог
Квартири
2-кімнатна 66 м² у клубному будинку. Преміум, панорама, переуступка
2-кімнатна 66 м² у клубному будинку. Преміум, панорама, переуступка
1 / 21
$136 000
$2 061/м²
ID
686494
Тип квартири
Вторинка
К-сть кімнат
2
Площа
66.00м²
Площа кухні
21.00м²
Поверх
6/6
Стан
Зданий сирець
Район
Франківський
Вулиця
Червона
Населений пункт
м. Львів
Опалення
Електричне
Матеріал стін
Цегла
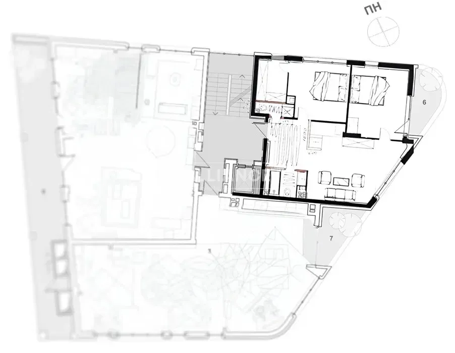
ОПИС
Пропонується стильна 2-кімнатна резиденція 66 м² у клубному будинку еліт-класу (2023 р.), вул. Червона. (р-н. Княгині Ольги.) Усього 17 квартир — максимальна приватність. 6 поверх, преміальний формат + можливість облаштувати власну терасу на даху. Планування та стан: • Готово до чистової обробки, з виконаними всіма чорновими роботами: стяжка, підведена електрика та сантехніка, тепла підлога, штукатурка • Простора кухня-вітальня 21 м² • Дві окремі кімнати • Два санвузли • Балкон/лоджія • Панорамний вид, багато світла • Опалення — тепловий насос Додатково: • Можна придбати 1–2 паркомісця • Доступна до купівлі комора 6,5 м² • Закритий підземний паркінг Локація: Тихий зелений район із низькоповерховою забудовою. Поруч — Ботанічний сад Лісотехнічного університету, школа, садок, супермаркет, громадський транспорт. Одна з найбільш комфортних локацій для життя у Франківському районі. Ціна: $135 900, переуступку повністю оплачує продавець. Хочете оглянути? Пишіть — організую перегляд у зручний час.
ЗВʼЯЗОК З МЕНЕДЖЕРОМ
no pic
Юрій Швед
+380 (93) 257 78 10