Головна
Каталог
Квартири
1 кім. квартира в новобудові Viking Hills
1 кім. квартира в новобудові Viking Hills
1 / 4
$60 000
$1 494/м²
ID
651339
Тип квартири
Новобудова
К-сть кімнат
1
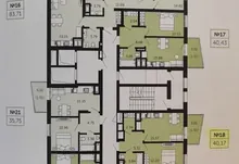
Площа
40.17м²
Площа кухні
15.17м²
Поверх
4/15
Стан
Сирець
Район
Шевченківський
Вулиця
Щурата
Населений пункт
м. Львів
Забудовник
Viking Development
ЖК
Viking Hills
ОПИС
Простора та світла однокімнатна квартира у сучасному житловому комплексі Viking Hills, розташованому у затишному спальному районі Львова. 📄 Продаж по переуступці ✅ Функціональне планування ✅ Чудова інфраструктура поруч: магазини, школи, зупинки транспорту ✅ Сучасна забудова з комфортним благоустроєм 🔥 Опалення – центральне, від загальнобудинкової котельні Ідеальний варіант як для власного проживання, так і для інвестиції.
ЗВʼЯЗОК З МЕНЕДЖЕРОМ
no pic
Галина Буній
+380 (67) 731 79 98