Головна
Каталог
Квартири
Двохрівнева квартира в центрі міста
Двохрівнева квартира в центрі міста
1 / 23
$70 000
$706/м²
ID
619472
Тип квартири
Новобудова
К-сть кімнат
3
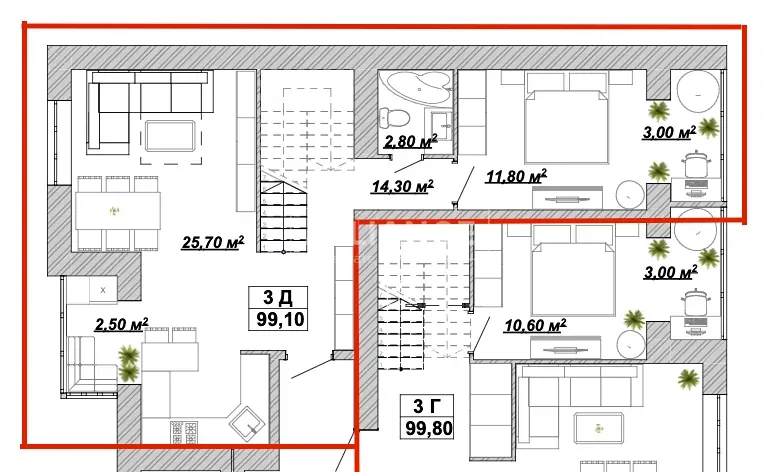
Площа
99.10м²
Площа кухні
20.00м²
Поверх
13/14
Стан
Зданий сирець
Район
Княгинин
Вулиця
Княгинин
Населений пункт
м. Івано-Франківськ
Забудовник
Спілка забудівників
ЖК
Княгинин
ОПИС
Продаж 2-рівненевої квартири з власною терасою у ЖК Княгинин! У вартість квартири входить: -утеплення цегляних стін 10-сантиметровим шаром пінопласту -шестикамерні металопластикові вікна з подвійним склопакетом та енергозберігаючим склом, товщиною профілю 92 мм -вхідні броньовані двері -штукатурка стін -встановлення лічильників обліку води, газу та електроенергії. Житловий комплекс Княгинин – комплекс комфорт-класу який розташований неподалік від центральної частини міста по вул. Княгинин, Квартира в ЖК«Книгинин»- це життя в ідеальному балансі: коли потрібно близькістю до центру міста та максимальна інфраструктура за вигідною ціною.
МІТКА НА КАРТІ
ЗВʼЯЗОК З МЕНЕДЖЕРОМ
Ярослав Греськів
+380 (93) 201 05 96