Головна
Каталог
Квартири
Продаж 2кім.квартири в ЖК Містечко Центральне
Продаж 2кім.квартири в ЖК Містечко Центральне
1 / 22
$73 000
$1 123/м²
ID
533157
Тип квартири
Новобудова
К-сть кімнат
2
Площа
65.00м²
Площа кухні
19.20м²
Поверх
15/15
Стан
Ремонт
Район
Центр
Вулиця
Височана
Населений пункт
м. Івано-Франківськ
Забудовник
Спілка забудівників
ЖК
Містечко Центральне
Опалення
Електричне
Матеріал стін
Цегла
ОПИС
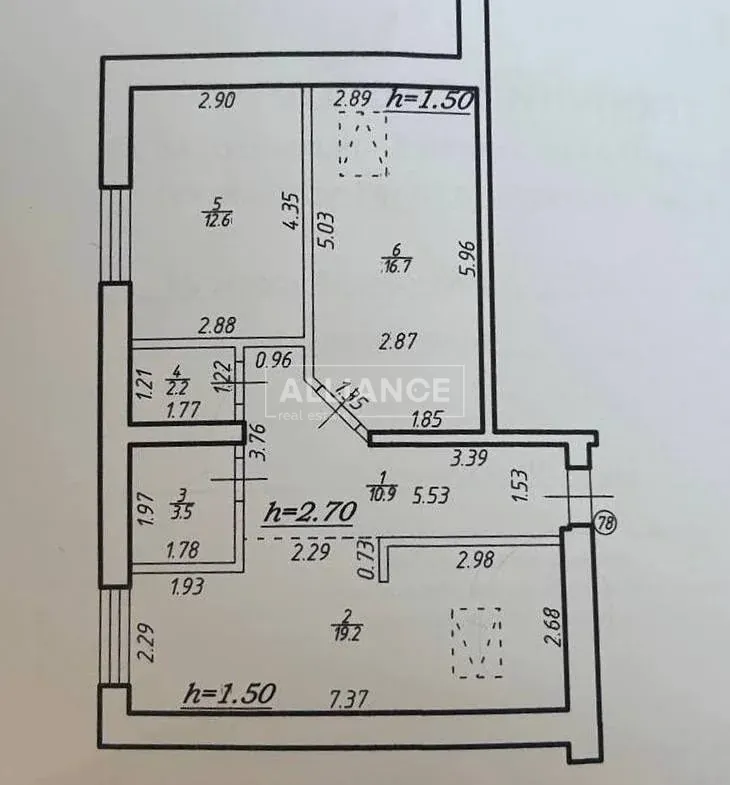
Продаж 2-кімнатної квартири мансардного типу в ЖК «Містечко Центральне» Пропонується до продажу простора та світла 2-кімнатна квартира в сучасному житловому комплексі ЖК Містечко Центральне. - Площа: 65 м² - Поверх: 15 з 15 - Опалення: електричне (потужність 15 кВт) - Підігрів підлоги: кухня та санвузол Планування: • простора кухня-студія — 19,2 м² • дві роздільні кімнати • два роздільні санвузли Квартира повністю укомплектована: пральна машинка, кондиціонер, духова піч, варильна поверхня, холодильник, бойлер електричний камін По всій квартирі ламінат, у кухні та санвузлах — керамограніт. Житло повністю готове до проживання — без додаткових витрат. Локація та інфраструктура: ЖК із розвиненою інфраструктурою та зручною транспортною розвʼязкою. У пішій доступності магазини, громадський транспорт, школи, дитячі садки, дитячі майданчики та все необхідне для комфортного життя. Ідеальний варіант як для власного проживання, так і для здачі в оренду.
МІТКА НА КАРТІ
ЗВʼЯЗОК З МЕНЕДЖЕРОМ
Максим Дзидз
+380 (68) 108 87 08