Головна
Каталог
Квартири
Без реклами! Зданий 3-х кімнатний сирець в ЖК Light Home
Без реклами! Зданий 3-х кімнатний сирець в ЖК Light Home
1 / 42
$104 500
$1 330/м²
ID
518392
Тип квартири
Новобудова
К-сть кімнат
3
Площа
78.60м²
Поверх
6/11
Стан
Зданий сирець
Район
Центр
Вулиця
Гарбарська
Населений пункт
м. Івано-Франківськ
Забудовник
VD Group
ЖК
Light home
ОПИС
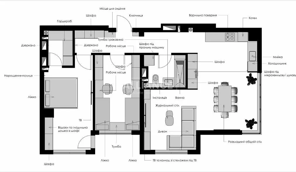
Продаж єдиної 3-х кімнатної квартиру в ЖК Light Home (бізнес-клас) м. Івано-Франківськ, вул. Софрона Мудрого, 29а Забудовник: VD Group Будинок зданий в експлуатацію. Квартира у стані сирець, ідеальна для реалізації власного дизайну. Про житловий комплекс: • Бізнес-клас • Монолітно-каркасне будівництво • Зовнішні стіни — керамоблок • Внутрішні стіни — повнотіла цегла • Утеплення мінеральною ватою (рідкість для ринку Івано-Франківська) • Закритий двір • Дитячий майданчик • Підземний паркінг Характеристики квартири: • Єдина 3-кімнатна квартира в цьому ЖК • Індивідуальне газове опалення (котел входить у вартість) • Гіпсова штукатурка стін під маяки • Встановлені якісні панорамні вікна та двері • Кухня-студія з великим панорамним алюмінієвим вікном та видом на парк • Відкритий балкон зі скляними поручнями • Заведено 10 кВт електроенергії Локація: • 10 хвилин пішки до міської Ратуші • 3 хвилини до парку Воїнів-Визволителів Бонус: Готовий повний дизайн-проєкт вартістю 3000 $ — у подарунок. Юридичний та фактичний стан: За документами та фактично квартира наразі поділена на дві однокімнатні квартири. Є можливість обʼєднання та перепланування у повноцінну 3-кімнатну квартиру. Готовий дизайн-проєкт входить у вартість і передбачає саме таке планувальне рішення
МІТКА НА КАРТІ
ЗВʼЯЗОК З МЕНЕДЖЕРОМ
Євгеній Нікітін
+380 (50) 454 62 33