Головна
Каталог
Квартири
Продаж 2к кв вул Рудненська8 67000
Продаж 2к кв вул Рудненська8 67000
1 / 9
$67 000
$971/м²
ID
480929
Тип квартири
Новобудова
К-сть кімнат
2
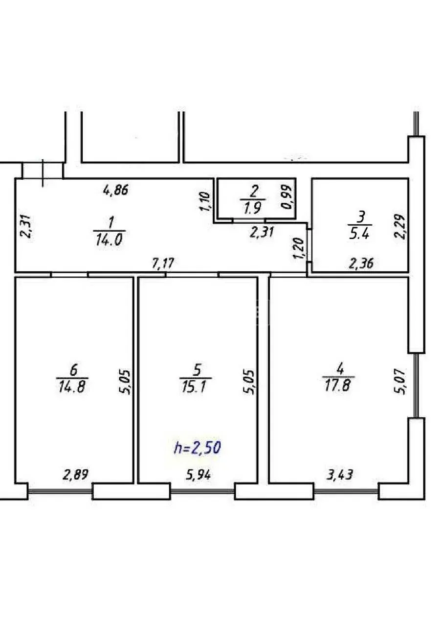
Площа
69.00м²
Площа кухні
14.80м²
Поверх
12/12
Стан
Зданий сирець
Район
Залізничний
Вулиця
Рудненська
Населений пункт
м. Львів
Забудовник
РІЕЛ
ОПИС
Продаж зданої 2 кім. кв. , ЖК РІЕЛ СІТІ, вул. Рудненська, 8 Продаж у зданому в експлуатацію будинку 2 кімнатну квартиру, площею 69 м. кв. , у ЖК РІЕЛ СІТІ, вул. Рудненська, 8. , будинок заселений, працює ліфт, квартира готова до початку ремонту Тип будинку: Житловий фонд від 2021 р. Назва ЖК: ЖК РІЕЛ СІТІ Клас житла: Комфорт Комфорт: Відеоспостереження, Консʼерж, Ліфт, Підземний паркінг, Гостьовий паркінг, Панорамні вікна, Охорона території Комунікації: Центральна каналізація, Електрика, Газ, Центральний водопровід Інфраструктура (до 500 метрів): Аптека, Лікарня, поліклініка, Зупинка транспорту, Дитячий садок, Ринок, Парк, зелена зона, Дитячий майданчик, Відділення пошти, Ресторан, кафе, Школа, Супермаркет, ТРЦ Ландшафт (до 1 км. ): Ліс, Озеро, Парк
ЗВʼЯЗОК З МЕНЕДЖЕРОМ
no pic
Володимир Світий
+380 (67) 577 66 21