Головна
Каталог
Квартири
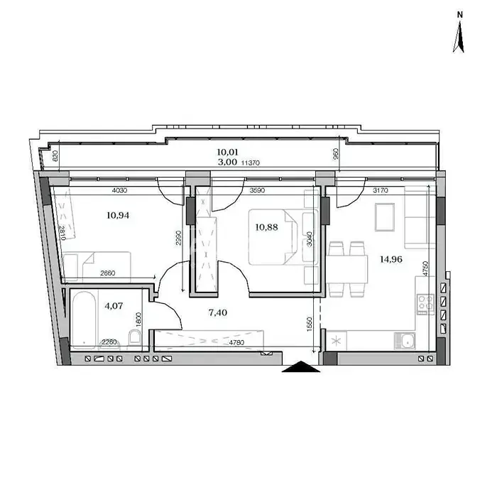
Продаж квартири 2 км.квартири 51 кв.м
Продаж квартири 2 км.квартири 51 кв.м
1 / 2
$86 305
$1 684/м²
ID
448281
Тип квартири
Новобудова
К-сть кімнат
2
Площа
51.25м²
Площа кухні
14.96м²
Поверх
4/5
Стан
Зданий сирець
Район
Залізничний
Вулиця
Стороженка
Населений пункт
м. Львів
Забудовник
РІЕЛ
ЖК
HARRY
ОПИС
Продаж 2-кімнатної квартири вул. Стороженка, Львів Без комісії. Площа: 51.25 м² Поверх: 4 із 5 Ціна: $1 684 / м² Загальна вартість: $86 305 Переваги квартири: – 2 кімнати – Велика кухня-вітальня – Власна тераса – Раціональне планування – Підійде як для життя, так і для оренди будинок з характером для тих, хто не шукає компромісів. Архітектура поєднує історичну форму та сучасну реновацію. ближній центр Львова, але в затишному, спокійному місці. Поруч: – парк для прогулянок – Оперний театр – IT-офіси – Львівська Політехніка – Суд, вокзал, зручна транспортна розвʼязка Особливості комплексу: – Підземний паркінг на 29 місць – Зарядні станції для електромобілів – Сад у англійському стилі – Дитячий майданчик – Зона для гри в настільний теніс – Зони work-out – Лобі з консьєржем Телефонуйте для уточнення деталей. Можливий торг або розтермінування напряму від забудовника. Всі документи в порядку.
МІТКА НА КАРТІ
ЗВʼЯЗОК З МЕНЕДЖЕРОМ
no pic
Марія Ковалишин
+380 (93) 941 72 70