Головна
Каталог
Квартири
Продаж 2 кім квартири по вул. Трускавецька Галжитлобуд
Продаж 2 кім квартири по вул. Трускавецька Галжитлобуд
1 / 4
$65 000
$1 140/м²
ID
439188
Тип квартири
Новобудова
К-сть кімнат
2
Площа
57.00м²
Площа кухні
14.00м²
Поверх
7/9
Стан
Сирець
Район
Франківський
Вулиця
Трускавецька
Населений пункт
м. Львів
ОПИС
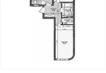
Продаж 2-кімнатної квартири від Галжитлобуд на вул. Трускавецькій (ЖК “З”) Продається 2-кімнатна квартира з дуже вдалим плануванням у новому житловому комплексі від надійного забудовника Галжитлобуд. Адреса: вул. Трускавецька, будинок «З», секція 2, підʼїзд 3 Площа: 57 м² Поверх: 7 / 9 Опалення: індивідуальне (газовий котел) Характеристики будинку та стан: Будинок збудований і засклений Зовні — розпочато фасадні роботи, всередині — штукатурять стіни Здача: 2 квартал 2026 року Частина будинків ЖК уже введена в експлуатацію Лише 4 квартири на поверсі Є підземний паркінг Переуступка Наповнення від забудовника: Стяжка, штукатурка Газовий котел, радіатори Вхідні броньовані двері Металопластикові вікна з двокамерними склопакетами Лічильники (газ, вода, електрика) Планування: Квартира двостороння: одна сторона — у двір, інша — на Сокільники Кімнати правильної форми — 15+ м² і 14+ м² 2 санвузли (один можна використовувати як комору чи гардеробну) Можна збільшити кухню за рахунок заскленої лоджії Переваги локації: Розвинена інфраструктура: поруч комерційні приміщення, магазини, транспорт Зручне сполучення з центром і Сокільниками Тиха, комфортна для життя частина міста Телефонуйте — деталі, планування, показ квартири за домовленістю.
ЗВʼЯЗОК З МЕНЕДЖЕРОМ
no pic
Марія Ковалишин
+380 (93) 941 72 70