Головна
Каталог
Квартири
Продаж 1к Квартира 51.84 кв.м вулиця Промислова
Продаж 1к Квартира 51.84 кв.м вулиця Промислова
1 / 4
$78 433
$1 513/м²
ID
353371
Тип квартири
Новобудова
К-сть кімнат
1
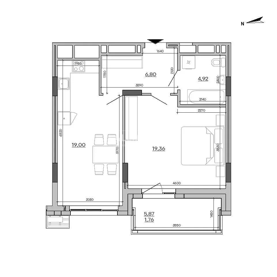
Площа
51.84м²
Площа кухні
19.00м²
Поверх
4/9
Стан
Сирець
Район
Шевченківський
Вулиця
Промислова
Населений пункт
м. Львів
ОПИС
Пропонується до продажу сучасна 1-кімнатна квартира у житловому комплексі Квартира розташована на 4-му поверсі 9-поверхового будинку. БЕЗ КОМІСІЇ для покупця Загальна площа: 51,84 м² Житлова площа: 19,36 м² Кухня-студія: 19 м² Поверх: 4/9 Технічні характеристики комплексу: Висота стелі — 2,7 м Індивідуальне газове опалення Підземний та гостьовий паркінг Закрита територія, двір без авто Район із розвиненою інфраструктурою Поруч магазини, зупинки, школи та садочки Зручна транспортна розвʼязка та швидкий доїзд до центру Квартира чудово підходить як для комфортного проживання, так і для інвестиції з орендою. За детальною інформацією та домовленістю про огляд телефонуйте
ЗВʼЯЗОК З МЕНЕДЖЕРОМ
no pic
Михайло Комарницький
+380 (93) 026 09 41