Головна
Каталог
Квартири
Продаж 2-ох кім. квартири в клубному будинку
Продаж 2-ох кім. квартири в клубному будинку
1 / 16
$144 000
$2 182/м²
ID
306189
Тип квартири
Новобудова
К-сть кімнат
2
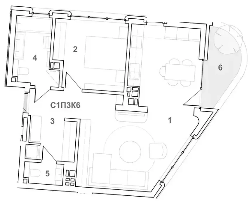
Площа
66.00м²
Площа кухні
21.00м²
Поверх
6/6
Стан
Зданий сирець
Район
Личаківський
Вулиця
Червона
Населений пункт
м. Львів
Забудовник
Карпатбуд
ОПИС
Простора 2-кімнатна квартира з панорамним видом у клубному будинку, всього 17 квартир Продається світла та затишна квартира у сучасному елітному житловому комплексі від власника. Район низькоповерхової забудови та особняків, поруч Ботанічний сад Лісотехнічного університету – ідеальне місце для комфортного життя! Основні характеристики: • Площа: 66 м² • Кількість кімнат: 2, роздільне планування • Кухня: 21 м² • Поверх: 6 з 6, є ліфт • Опалення: сучасний тепловий насос, економія на комунальних • Санвузол: 2 і більше • Ремонт: під чистову обробку Основні переваги: • Елітний клубний будинок, всього 17 квартир, лише 3 квартири на поверсі • Панорамний вид, мальовничі краєвиди з вікон • Підземний паркінг, можливість придбати паркомісця та кладову • Підігрів підлоги для максимального комфорту • Просторий балкон і лоджія, додатковий простір для відпочинку • Цегляні стіни, відмінна шумо- та теплоізоляція Нові власники отримають квартиру з уже виконаними всіма необхідними базовими роботами: • Підведення для сантехніки • Зроблена гребінка для керування опаленням з підігрівом підлоги • Підведена електрика • Виконана стяжка підлоги • Стіни оштукатурені • Захист вікон від будівельного бруду Розвинена інфраструктура: • Район особняків і малої поверховості, без натовпу та шуму • Поруч Ботанічний сад Лісотехнічного університету – місце для прогулянок та відпочинку • Школа, садочок, супермаркет у пішій доступності • Зупинка громадського транспорту, зручна розвʼязка • Кафе, ресторани, аптеки – все необхідне поруч Ідеальний варіант для комфортного життя або інвестиції!
ЗВʼЯЗОК З МЕНЕДЖЕРОМ
no pic
Галина Буній
+380 (67) 731 79 98