Головна
Каталог
Квартири
Центр. ЖК Княгинин здана 3 кім 118м2 з терасою
Центр. ЖК Княгинин здана 3 кім 118м2 з терасою
1 / 13
$74 000
$629/м²
ID
220169
Тип квартири
Новобудова
К-сть кімнат
3
Площа
117.6м²
Поверх
12/13
Стан
Зданий сирець
Район
Пасічна
Вулиця
Княгинин
Населений пункт
м. Івано-Франківськ
Забудовник
Спілка забудівників
ЖК
Княгинин
ОПИС
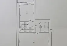
Центр. ЖК Княгинин Здана 3 кім 118м2 з терасою Продаж по договору-переуступки(оформляється в фірмі забудовника) Комунікації запущено, ліфт працює. Є газ. Пропоную трикімнатну дворівневу квартиру у зданому корпусі ЖК "Княгинин" Поруч знаходяться парк та річка, вздовж якої дамба, де можна прогулятися. Шикарна площа, можливо перепланувати під свій смак. Відкрита тераса для відпочинку на свіжому повітрі. Великий підземний паркінг. Поруч розвинута інфраструктура: магазини( продуктові, з одягом та з буд.матеріалами), салони краси, супермаркети, аптеки, школа та безліч іншого для вашого комфорту. Зручна транспортна розвʼязка.
МІТКА НА КАРТІ
ЗВʼЯЗОК З МЕНЕДЖЕРОМ
Євген Борсук
+380 (95) 219 49 78